海躍潤園丨北京魯能格拉斯別墅花園

△《千里江山圖》
東方取意 疏簡賦形
獻給生活的美好詩意
為尋求內心關于美的答案,本案設計以東方精神為起點,從傳世名畫《千里江山圖》印象出發,借鑒東方傳統繪畫美學意識,提取中國畫之精髓,將“尚理、從法、重意”結合。打破程式化的設計過程,以融情于景,將東方意境同西方古典基調復合,借由“克制內放”的手法,完成摩登與詩意的空間敘事,將詩意空間的藝術想象注入居者的高階生活。
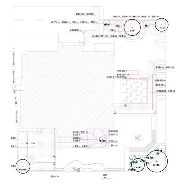
平面布局圖

設計草稿

△場地原狀

△手繪效果圖
每一件物體每一個空間都有氣場,而行走其中的人也是有氣場的。所以空間設計就是構建這些物體各自氣場的沖突與相容,從而達到一種可感知的特定氣場。

△場地原狀與手繪效果圖
落地實景



入戶花園將歐洲古典庭院中的裝飾元素融入其中,化繁為簡的設計給人一種浪漫情懷。夕陽西下,整座庭院被照耀成了金色。推開大門,古典雕塑的壁泉映入眼前,給人一種視覺藝術上的享受。

從入戶花園沿階梯邁入下沉庭院,猶如從西方神話世界穿越到了東方圣境。與入戶花園不同,下沉庭院的設計更注重“情”和“景”。走進花園,有種豁然開朗的感覺。院子中心放置了一個圓形壁爐,右側布置了一個BBQ燒烤臺,是戶外廚房餐廳的延伸。燒烤臺上是耐火磚砌的圍墻,保證了燒烤油煙明火的安全性。燒烤臺下的柜子,可以收納廚具及花園的部分用品。



下沉庭院景墻的設計理念來源于宋·王希孟《千里江山圖》,取意畫中山峰輪廓,置于景墻之上,中心景觀是彩云追月的層疊水系,以當代的景觀設計語言表現傳統中國山水的精神內涵,猶如持續變化的山水畫卷。


山峰造型為鋁板材質,使用烤漆工藝打造出層巒疊嶂的色彩,每一塊皆由設計師親自研究并設計形態,使其弧度、紋理、色彩、和水面高度都暗藏匠心。夜景燈光更是將山疊嶺層巒的意境表現得淋漓盡致。


來自MOROSO極具代表性的M'Afrique戶外家具系列,Shadowy有著十分現代的造型,同時也保持著濃厚的非洲部落風格,加上濃郁、飽和、艷麗的色彩,有著令人一見傾心的魔力。


△戶外家具Shadowy
植物設計

前景植物:采用一些低矮的一二年生花卉、多年生宿根花卉,如蝦夷蔥、礬根等。
中景植物:采用稍高的多年生宿根花卉,如安娜貝爾、細葉芒、絡新婦等。
背景植物:采用一些小喬木,花灌木等稍高植物,如五角楓、銀杏、山楂、西府海棠等,來勾勒整個花境的布局和線條。



花境


在長期的文化經濟交流以及當下生活方式的變革中, 東西方的不同美學意識, 已經在不同的審美文化群中發生著一種連續性的互動過程。設計師運用現代手法和藝術語境的結合,使東方氣質和摩登時尚極致融合,呈現契合當代人對居住需求的場景演繹。


庭院小景
項目信息
項目地點:北京魯能格拉斯
花園面積:485㎡
花園造價:100萬
施工周期:120天
設計風格:東方摩登
項目主創:周磊 楊德寶
項目類型:別墅花園
設計單位:北京海躍潤園景觀設計有限責任公司
施工單位:北京海躍潤園綠化工程有限公司
編輯:liqing
相關閱讀
江蘇揚州:今年實施五大攻堅行動提升城市綠化
城市道路綠化增綠行動。利用今年春季綠化黃金季節,針對城市道路綠化達標率、林蔭路覆蓋率等指標,全面開展道路綠化增綠提綠補綠,重點對87條道路的行道樹“有綠無蔭、有景少蔭”、綠化品種單一等問題進行整改,形成配置合理、錯落有致、層次清晰的道路綠化景觀【詳細】
北京昌平新城東區將打造濱水商業消費新地標
昌平新城東區位于昌平區南邵鎮,規劃建設用地面積11平方公里,規劃人口12萬,圍繞打造首都北部消費新地標編織街區控規已獲批。未來,昌平新城東區將打造成為京北體驗消費示范區、山水宜居典范城區、高水平綜合服務承載區和智慧產研創新園區【詳細】
南寧園博園舉辦“禮樂園博·南寧花朝盛典”
活動期間,南寧園博園還舉辦了漢服新秀大賽、同袍巡游、及笄成人禮、國風婚禮妝照展示、明制婚禮儀式典禮、六藝游園、書畫體驗、國風集市等精彩紛呈的活動,同時邀請眾多知名國風模特參與表演展示【詳細】
成都首屆“最美公園”評選結果出爐
據成都市公園城市建設管理局相關負責人介紹,本次“最美公園”評選范圍包括23個區(市)縣已建成開放的1514個公園,包括綜合公園、口袋公園,還有郊野公園【詳細】



